Villa a schiera in vendita

Castelbelforte, Via Papa Paolo VI
€ 225.000
5 locali 5 locali
160 Mq 160 Mq
3 bagni 3 bagni

Villa a schiera in vendita

Castelbelforte, Via Papa Paolo VI

Descrizione annuncio

CASTELBELFORTE- VENDESI

Porzione di quadrifamiliare con giardino su due lati.

L'immobile risale all'anno 2008, l'ingresso pedonale è separato e indipendente, mentre quello carraio viene condiviso con l'unità immobiliare attigua per accedere alle rispettive autorimesse.

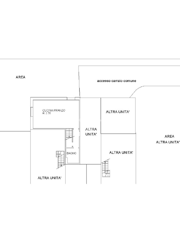
La soluzione si struttura internamente su tre livelli. Al piano terra, l'ingresso è diretto nella zona giorno con cucina a vista e accesso al giardino. Il disbrigo conduce alla doppia autorimessa, direttamente collegata con l'abitazione, al primo servizio, cieco e con box doccia e al ripostiglio ricavato nel sottoscala.

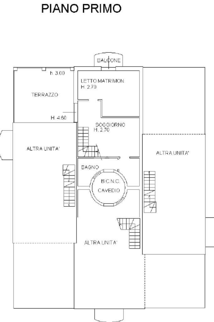
Salendo al piano superiore, si viene accolti da un secondo salottino che accede al terrazzo a loggia, spazioso, arioso e con vista sulla campagna circostante. Completano questo livello una comoda lavanderia, una camera matrimoniale con balcone e il secondo servizio, anch'esso accessoriato di box doccia e con affaccio sul cavedio di cui usufruisce anche l'unità adiacente, è presente una porta finestra per utilizzarlo in comodità. .

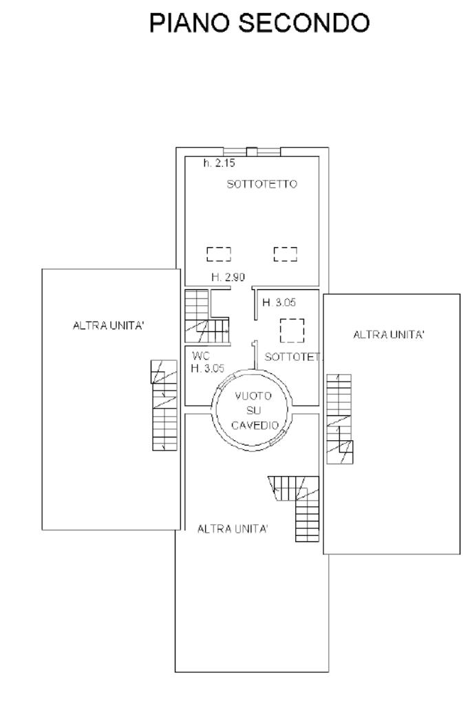
Proseguendo, si giunge al piano mansardato suddiviso in camera matrimoniale, camera singola e terzo bagno con doccia e affaccio sul cavedio.

L'immobile presenta ottime finiture: soffitti con travi in legno, riscaldamento a pavimento e predisposizione per separarlo ad ogni piano, impianto di climatizzazione, impianto di irrigazione, infissi con vetrocamera e scuretti esterni in legno, pavimentazione in gres porcellanato, cappotto termico e predisposizione per i pannelli solari.

Arredo di cucina e bagni possono essere inclusi.

Per maggiori informazioni contattaci ai nostri recapiti:

Telefono: 0376/468224,

Mail:

Scopri altre offerte sul nostro sito web:

sangiorgiobigarello1

Canali social:

Facebook Gruppo Tecnocasa San Giorgio Bigarello

Instagram @tecnocasasangiorgiomn

Mostra tutto

Nelle vicinanze

Trasporto pubblico Trasporto pubblico
CASTELBELFORTE - P.za Giuseppe Graribaldi, Chiesa
CASTELBELFORTE - P.za Giuseppe Graribaldi, Chiesa
310 m
Farmacia Farmacia
Farmacia San Gaetano
360 m
Negozi Negozi
Panificio Ferrari
340 m
Bar Bar
Bar Centrale
290 m
Simpaty
710 m
Ristoranti Ristoranti
Pizza Più
280 m
Pantagruel Pizza & Stube
300 m
Non solo bar
340 m
Mostra tutto

Caratteristiche

Rif.:
61200204
Piano:
1 di 1 (Piano su più livelli)
Box:
1
Balconi:
1
Terrazzi:
1
Camere da letto:
3
Mostra tutto
Prezzo Prezzo
€ 225.000
Rata mutuo Rata mutuo
€ 1.061 / mese
Proponi il tuo prezzoProponi il tuo prezzo
Immobile valutato con T·Valuta

Classe Energetica

D
D
D
D
D
D
D
D
D
EP globale non rinnovabile:
95.00 kW h/m² anno
EP globale rinnovabile:
95.00 kW h/m² anno
EP invernale del fabbricato:
EP estiva del fabbricato:
Anno di costruzione:
2008
Riscaldamento:
Autonomo
Tipo impianto:
A pavimento
Tipo alimentazione:
Metano

Ti interessa visionare l'immobile?

Fissa un appuntamento  Fissa un appuntamento

Richiedi informazioni

Clicca su Leggi per aprire l'informativa
* Questi campi sono obbligatori

Calcola il tuo mutuo

Semplice e senza impegno
Anticipo

( % )
Mutuo

( % )

pochi semplici passi

inserisci i tuoi dati
Questionario completato
Grazie per aver richiesto un appuntamento senza impegno con un nostro Consulente del Credito e Assicurativo.

Hai inserito correttamente tutti i dati necessari e a breve riceverai una e-mail con un link da convalidare per inviare i tuoi dati.
Affiliato
Studio San Giorgio Sas
Via Matteotti, 35 46051 San Giorgio Bigarello (MN)

Il nostro staff


  • Mattia Balasso
    Affiliato

  • Christian Caiazzo
    Collaboratore

  • Bojana Josipovic
    Coordinatrice

  • Daniele Parente
    Affiliato

  • Jacopo Zenari
    Collaboratore
Via Matteotti, 35 46051 San Giorgio Bigarello (MN)
Zona: San Giorgio Bigarello-Castel D'Ario-Castel Belforte-Cittadella-Colle Aperto-Frassine-Lunetta
Mostra su mappa
Affiliato
Studio San Giorgio Sas
Via Matteotti, 35 46051 San Giorgio Bigarello (MN)

2026 Tecnocasa Franchising S.p.A. - P. IVA 08365160152 - Via Monte Bianco 60/A 20089 Rozzano (MI). Ogni agenzia ha un proprio titolare ed è autonoma. Privacy policy | Policy utilizzo | Cookie policy