Trilocale in vendita

Mantova, Via Verona - Cittadella - Colle Aperto
€ 65.000
3 locali 3 locali
75 Mq 75 Mq
1 bagno 1 bagno

Trilocale in vendita

Mantova, Via Verona - Cittadella - Colle Aperto

Descrizione annuncio

MANTOVA- VENDESI

Località Cittadella.

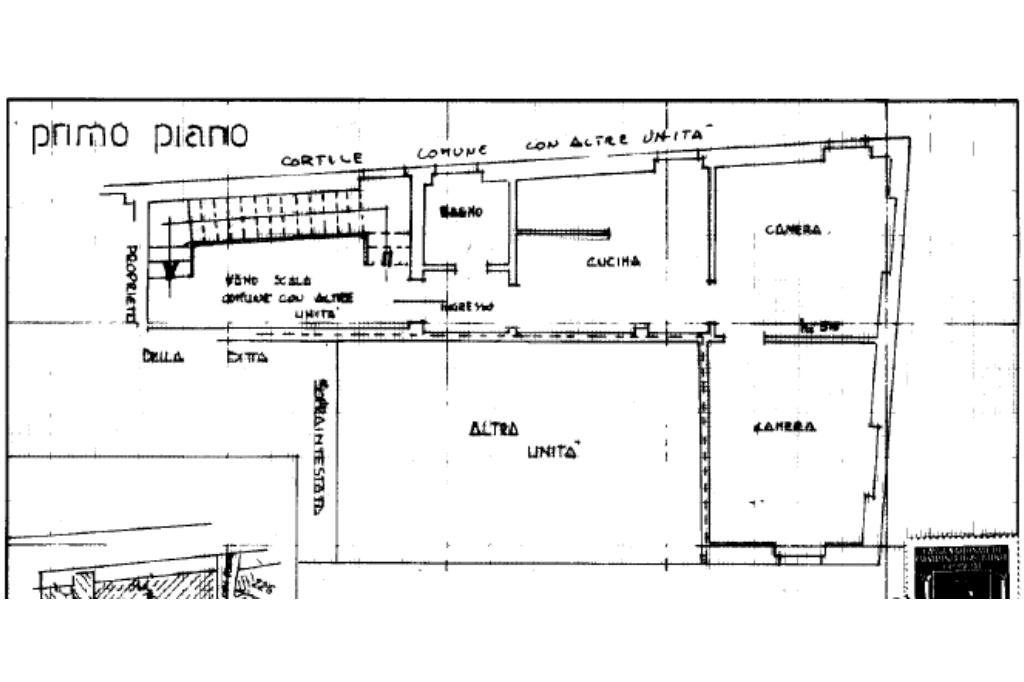
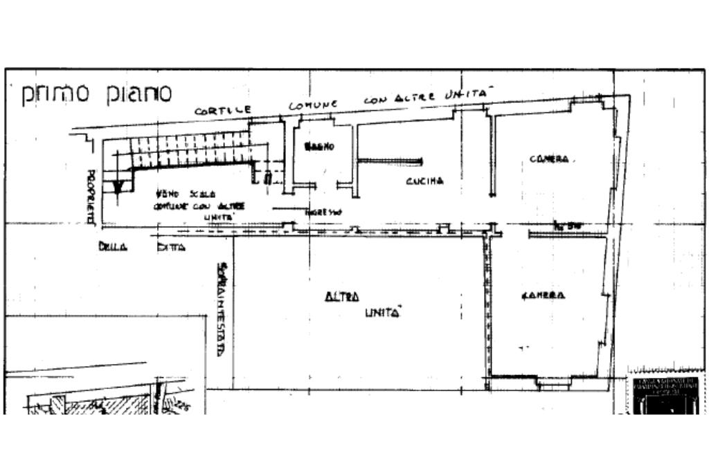
Appartamento trilocale allo stato grezzo avanzato, posto al primo piano di una palazzina anni 60.

L'immobile si compone di ingresso con accesso al servizio finestrato e predisposto per ospitare la doccia, zona giorno con angolo cottura a vista, camera matrimoniale e camera 3/4.

Completa la proprietà una soffitta al secondo piano della palazzina.

Lo stabile non presenta spese condominiali e si trova in posizione centrale del quartiere, a pochi passi da fermata degli autobus ed esercizi commerciali.

L'appartamento viene venduto nello stato di fatto, con impianti predisposti e imbiancato, pronto da ultimare secondo i propri gusti e necessità.

Per maggiori informazioni contattaci ai nostri recapiti:

Telefono: 0376/468224,

Mail:

Scopri altre offerte sul nostro sito web:

sangiorgiobigarello1

Mostra tutto

Nelle vicinanze

Trasporto pubblico Trasporto pubblico
Mantova
Mantova
1,6 Km
Sant’Antonio Mantovano
Sant’Antonio Mantovano
1,7 Km
Cartiera Burgo
Cartiera Burgo
960 m
Stazione FS
Stazione FS
1,5 Km
Ricariche auto elettriche Ricariche auto elettriche
Evway Mantova Pradella
1,7 Km
evway Corso della Libertà
1,8 Km
evway Parcheggio Arche
1,9 Km
Evway Mantova Parcheggio Sparafucile
2,2 Km
evway Mantova Mozzarelli
2,9 Km
Scuole Scuole
Scuola elementare statale Pomponazzo
1,2 Km
Politecnico di Milano - Sede di Mantova
1,3 Km
Scuola Media Leon Battista Alberti
1,5 Km
Scuole
1,5 Km
Liceo Classico Virgilio
1,9 Km
Farmacia Farmacia
Farmacia San Raffaele
130 m
Farmacia
1,3 Km
Farmacia Cooperativa Mantovana
1,5 Km
Farmacia San Giorgio
1,6 Km
Farmacia San Carlo
1,7 Km
Ospedali Ospedali
Poliambulatori - Asst Mantova
960 m
Neuropsichiatria infantile territoriale
2,1 Km
Villa Al Lago
2,2 Km
R.S.A. Isabella d'Este - R.S.A. Luigi Bianchi
2,4 Km
Supermercati Supermercati
Famila
330 m
Lidl
1,2 Km
Carrefour
1,7 Km
Albero
1,8 Km
Il Tagliere Gastronomia
2,0 Km
Negozi Negozi
Casa del Pane
1,5 Km
Mango
1,6 Km
Oviesse
1,6 Km
Calzedonia
1,7 Km
Host
1,7 Km
Bar Bar
Bar
1,5 Km
Mascara
1,6 Km
Bar Gonzaga
1,6 Km
Il gallone
1,6 Km
Caffè La Pace
1,6 Km
Ristoranti Ristoranti
L’ochina bianca
1,3 Km
Al Quadrato
1,3 Km
Aquila Nigra
1,5 Km
La Porta Accanto
1,5 Km
Osteria Le Quattro Tette
1,5 Km
Mostra tutto

Caratteristiche

Rif.:
61120314
Piano:
1 di 2 (Piano su più livelli)
Camere da letto:
2
Arredamento:
Assente
Condizionamento:
Assente
Ascensore:
No
Mostra tutto
Prezzo Prezzo
€ 65.000
Rata mutuo Rata mutuo
€ 306 / mese
Proponi il tuo prezzoProponi il tuo prezzo

Altre caratteristiche

Descrizione dei locali
Altri Locali Soffitta

Classe Energetica

Questo immobile è esente da classe energetica
Anno di costruzione:
1960
Riscaldamento:
Autonomo
Tipo impianto:
A radiatori
Tipo alimentazione:
Metano

Ti interessa visionare l'immobile?

Fissa un appuntamento  Fissa un appuntamento

Richiedi informazioni

Clicca su Leggi per aprire l'informativa
* Questi campi sono obbligatori

Calcola il tuo mutuo

Semplice e senza impegno
Anticipo

( % )
Mutuo

( % )

pochi semplici passi

inserisci i tuoi dati
Questionario completato
Grazie per aver richiesto un appuntamento senza impegno con un nostro Consulente del Credito e Assicurativo.

Hai inserito correttamente tutti i dati necessari e a breve riceverai una e-mail con un link da convalidare per inviare i tuoi dati.
Affiliato
Studio San Giorgio Sas
Via Matteotti, 35 46051 San Giorgio Bigarello (MN)

Il nostro staff


  • Mattia Balasso
    Affiliato

  • Christian Caiazzo
    Collaboratore

  • Bojana Josipovic
    Coordinatrice

  • Daniele Parente
    Affiliato

  • Jacopo Zenari
    Collaboratore
Via Matteotti, 35 46051 San Giorgio Bigarello (MN)
Zona: San Giorgio Bigarello-Castel D'Ario-Castel Belforte-Cittadella-Colle Aperto-Frassine-Lunetta
Mostra su mappa
Affiliato
Studio San Giorgio Sas
Via Matteotti, 35 46051 San Giorgio Bigarello (MN)

2025 Tecnocasa Franchising S.p.A. - P. IVA 08365160152 - Via Monte Bianco 60/A 20089 Rozzano (MI). Ogni agenzia ha un proprio titolare ed è autonoma. Privacy policy | Policy utilizzo | Cookie policy